Starter/Killschalter 3AJ

Zündaussetzer, Seitenständerschalter, Lichtmaschine usw.
Doigg
Beiträge: 66
meble kuchenne Ruda Śląska Rybnik Tychy
Registriert: Di 13. Aug 2019, 21:11

Starter/Killschalter 3AJ

Beitrag von Doigg »

Servus XT-Gemeinde,
ich bin gerade dabei eine völlig abgerockte 3AJ wieder herzurichten. Es sind natürlich einige Teile kaputt, so auch der Starter/Killschalter an der rechten Lenkerseite.
Ein neuer kostet ja ein Vermögen (145€ bei Kedo). :shock:
Ich habe mir daher in der Bucht einen geschossen. Der ist allerdings laut Verkäufer von einer XT 600E 3TB. Ich dachte der passt schon, leider passt er aber nicht. :(
Der alte Schalter hatte einen dreipoligen Stecker und meine Neuerwerbung einen vierpoligen.
Kann ich den trotzdem anschließen?
Wenn ja welche Kabelbelegung?

Wäre sehr dankbar für Antworten da ich elektrisch eher ein kleines Licht bin. :oops:

Gruß Daniel

Benutzeravatar
motorang
Beiträge: 5380
Registriert: Mi 31. Dez 2003, 05:13

Re: Starter/Killschalter 3AJ

Beitrag von motorang »

Servus
Problem: von der 3TB gibt es zwei Versionen: XT600E (Elektrostart mit TCI, also anderes Zündsystem und damit anderer Killschalter als bei der 3AJ) und XT600K (Kickstart mit CDI, die müsste kompatibel sein).

Frag am besten den Verkäufer ob das ein Kickstarter- oder ein Elektrostartermopped war.

Es ist so dass der TCI-Killer genau andersrum funktioniert (Öffner statt Schließer). Der Schalter von der XT600K oder auch vom Vorgängermodell 1VJ passt hingegen.
Gebrauchtteil ist auch ne Option (Motoritz fragen). Oder hier im Forum eine Suchanzeige reinstellen.

Hier im Technikbereich ist jeweils ein Schaltplan zu finden ... > https://www.xt600.de/xt_werkstatt/_tech ... /index.htm und nach Motorstoppschalter suchen.

Im Schaltplan ist der von der TCI-Zündung ein Kombischalter mit 4 Anschlüssen.
Das wäre dann nicht passend für die 3AJ. Schaut aus als wäre das Deiner.
Kabelfarben: da wären zwei gleichfarbige Kabel dabei (rot-weiß) und KEINES mit schwarz-weiß. Treffer?

Gryße!
Andreas, der motorang
___
Hübsch aussehen alleine reicht eben nicht - man muss auch Bier trinken können.

Benutzeravatar
Svoeen
Beiträge: 558
Registriert: So 29. Apr 2018, 17:07
Wohnort: Hofheim in Unterfranken

Re: Starter/Killschalter 3AJ

Beitrag von Svoeen »

Ich würde vorm Einbau den Schalter mit einem Widerstandsmesser(hat jedes Multimeter dabei) durchmessen, welche Kabel, bei welcher Schalterstellung gebrückt sind und das mit deinem alten Schalter bzw deinem Schaltplan vergleichen, dann hast du es richtig, sofern der Schalter das gleiche Funktionsbild hat.
WR 450 F(06er), XT 600E 3UW offen, XTZ 660 3YF, XTZ 850 mit 3VD, XT 750 Scrambler, XV 750 SE Chopper Umbau, XS 1100 Gespann, Grizzly 660

Benutzeravatar
motorang
Beiträge: 5380
Registriert: Mi 31. Dez 2003, 05:13

Re: Starter/Killschalter 3AJ

Beitrag von motorang »

Hat er nicht ...

CDI: Killschalter schaltet Zündstrom auf Masse bei Zündung aus
TCI: Killschalter schaltet die Versorgung der TCI aus bei Zündung aus

Gryße!
Andreas, der motorang
___
Hübsch aussehen alleine reicht eben nicht - man muss auch Bier trinken können.

Benutzeravatar
displex
Beiträge: 2162
Registriert: Mo 12. Mär 2007, 07:35
Wohnort: Enzkreis

Re: Starter/Killschalter 3AJ

Beitrag von displex »

motorang hat geschrieben:
Do 22. Aug 2019, 07:31
Es ist so dass der TCI-Killer genau andersrum funktioniert (Öffner statt Schließer).
Das konnte ich jetzt so aus den Schaltplänen nicht herauslesen.
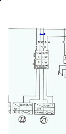
Jedenfalls ist es ein Leichtes aus einem 4 Poligen einen 3 Poligen schalter zu machen
Du musst nur eine Brücke einbauen, da du den Schalter schon hast, würde ich mal wie in der Skizze vorgehen
3TBe_Kill.JPG
3AJ_Kill.JPG
3AJ_Kill.JPG (13.19 KiB) 5948 mal betrachtet
https://tenere.de/index.php/topic,11219 ... l#msg88914

motorang hat geschrieben:
Do 22. Aug 2019, 07:31
Der Schalter von der XT600K oder auch vom Vorgängermodell 1VJ passt hingegen.
Gebrauchtteil ist auch ne Option (Motoritz fragen). Oder hier im Forum eine Suchanzeige reinstellen.
Sind leider in gutem Zustand nicht zu bekommen.
Gruß Thomas

Eintopf rockt!!
Hab ne handvoll davon
Yamaha XT600Z Ténéré 87 (1VJ) blau
KTM LC4 600 92 weiss
3x Yamaha SR 500 78-80-81
Bildergalerie

Benutzeravatar
displex
Beiträge: 2162
Registriert: Mo 12. Mär 2007, 07:35
Wohnort: Enzkreis

Re: Starter/Killschalter 3AJ

Beitrag von displex »

Der hier schein auch ganz brauchbar

https://de.aliexpress.com/item/32836679 ... c0c7c28457
Gruß Thomas

Eintopf rockt!!
Hab ne handvoll davon
Yamaha XT600Z Ténéré 87 (1VJ) blau
KTM LC4 600 92 weiss
3x Yamaha SR 500 78-80-81
Bildergalerie

Doigg
Beiträge: 66
Registriert: Di 13. Aug 2019, 21:11

Re: Starter/Killschalter 3AJ

Beitrag von Doigg »

Servus beinand,
so der Verkäufer sagte er sei von einer XT 600E.
Ich bin erst heute abend wieder in meiner Schrauberhöhle aber was ich noch in Erinnerung habe hat der Stecker von der Armatur zwei R/W Kabel.
Das Aussehen ist wie bei dem Link von displex.
Werde mal probieren ob ich das so hinkriege wie von ihm beschrieben.
Melde mich wieder wenn ich beim schrauben bin.
Vielen Dank schon mal für eure schnellen un kompetenten Antworten.
Gruß Daniel

Benutzeravatar
displex
Beiträge: 2162
Registriert: Mo 12. Mär 2007, 07:35
Wohnort: Enzkreis

Re: Starter/Killschalter 3AJ

Beitrag von displex »

Ich hab da in der ersten Skizze einen Fehler eingebaut, dachte die Leitungen sind vor und nach dem Stecker gleich.
Also Brücke zw. R/W und L/W
Inked3TBe_Kill_2.jpg
Gruß Thomas

Eintopf rockt!!
Hab ne handvoll davon
Yamaha XT600Z Ténéré 87 (1VJ) blau
KTM LC4 600 92 weiss
3x Yamaha SR 500 78-80-81
Bildergalerie

Benutzeravatar
motorang
Beiträge: 5380
Registriert: Mi 31. Dez 2003, 05:13

Re: Starter/Killschalter 3AJ

Beitrag von motorang »

Ah sorry, mein Fehler

Die Kurzschlussschaltung von B/W nach B stellt im ZÜNDSCHLOSS den Motor ab, nicht im Killschalter.
Bzw bei der XT600K funktioniert auch der Killschalter so.

Bei den E-Startermoppeds wirkt der Killschalter auf das Unterbrecherrelais der Zündanlage. Abgestellt wird durch Öffnen eines Kontaktes. Damit sollte sich die Armatur der XT600E verwenden lassen.

Gryße!
Andreas, der motorang
___
Hübsch aussehen alleine reicht eben nicht - man muss auch Bier trinken können.

Doigg
Beiträge: 66
Registriert: Di 13. Aug 2019, 21:11

Re: Starter/Killschalter 3AJ

Beitrag von Doigg »

Servus zusammen,
gestern hab ich noch ein wenig gespielt und folgendes zusammengebaut.

Schalterseite. Kabelbaum

Rot/Weiß auf. Schwarz
Blau/Weiß. auf. Rot/Weiß
Rot/Weiß auf. Blau/Weiß
Schwarz. auf. Blau/Weiß

War das so richtig?
Was meint ihr kann ich das zusammenstecken und starten ohne dass das Moped abraucht? :?

Antworten